Nhà Đẹp 3 Tầng xu hướng Nhật ở Vĩnh Phúc Thiết Kế Hình Bậc Thang Độc Đáo
Đẹp, tinh tế, đầy đủ tiện dụng và thích hợp với thời tiết nóng ẩm của miền Bắc, mẫu nhà đẹp 3 tầng kiểu Nhật ở Vĩnh Phúc còn đáp ứng đầy đủ không gian sống cho các thành viên trong gia đình trong một không gian trong lành bởi hệ sân vườn và rất nhiều cây xanh được trồng xung quanh. Hãy cùng Kênh nhà đẹp khám phá ngôi nhà đẹp có 102 này.
Ngày càng phần lớn người dân ở các đô thị mong muốn có nơi ở ở ngoại ô nhằm quây quần cùng người thân, bạn bè vào cuối tuần. Vĩnh Phúc cách Hà Nội khoảng hơn 40 cây số. Đặc biệt nơi đây có khí hậu mát mẻ, trong lành. Đây là những lý do chủ nhà chọn nơi đây là nơi xây dựng cho ngôi nhà đẹp 3 tầng phong cách Nhật của mình.
nhằm phù hợp với khí hậu thời tiết miền Bắc Việt Nam, các nhà thiết kế đã quyết định đưa ra ý tưởng với ngôi nhà phong cách Nhật Bản pha thiết kế ruộng bậc thang. Nhìn tổng quan, ngôi nhà đẹp 3 tầng mang vẻ đẹp đậm chất Nhật Bản. Sự tạo thành khối lệch giữa các tầng tạo nên sự so le hình ruộng bậc thang tạo thành sự độc đáo. Dưới ánh đèn, khi màn đêm xuống, ngôi nhà như một bức tranh lung linh, huyền ảo.
Các tầng được xây trượt về phía sau, tạo thành thành khoảng ban công vươn về trước theo hướng gió mát Đông Nam. Phần đua ra của tầng trên tạo thành mái hiên cho tầng dưới ở phía Tây Bắc, giúp giảm nhiệt độ cho cấu trúc bê tông cốt thép của tòa nhà.
Nhờ thiết kế độc đáo này, từng tầng của ngôi nhà đều có ban công và hệ cửa lớn có tác dụng đón gió và có tầm nhìn ra hồ.
khắp ngôi nhà ngập tràn các cây xanh và hoa lá. chủ nhà thiết kế hệ thống trồng cây hoa ngay trên chính ban công của từng tầng. Nhìn từ xa, ngôi nhà ví như bao bọc bởi cây và hoa.
Xem thêm: HẾT SỨC BẤT NGỜ VỚI NHÀ 3 TẦNG TỒI TÀN NHƯNG CHỨA ĐỰNG CẢ SÀI GÒN XƯA CŨ BÊN TRONG
Mái và hệ cửa vận dụng kỹ thuật làm gỗ truyền thống nhằm đảm tận dụng triệt để khả năng thông gió tự nhiên và giảm bớt sự tác động của ánh nắng mặt trời. Gia chủ có thể linh hoạt tạo thành ra các không gian đóng - mở liên thông tùy nhu cầu.
Tầng mái bằng gỗ được lắp ráp xen kẽ với ngói, có cửa sổ hút gió trên đỉnh. Cửa sổ này đóng vai trò là đường thông gió từ tầng 2, tầng 3 lên khu vực cao nhất của công trình.
Xem thêm một số hình ảnh về ngôi nhà đẹp 3 tầng kiểu Nhật Bản này:
Mặt bằng Tầng 1:
Mặt bằng tầng 2:
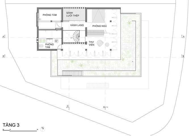
Mặt bằng tầng 3:
Ngày càng phần lớn người dân ở các đô thị mong muốn có nơi ở ở ngoại ô nhằm quây quần cùng người thân, bạn bè vào cuối tuần. Vĩnh Phúc cách Hà Nội khoảng hơn 40 cây số. Đặc biệt nơi đây có khí hậu mát mẻ, trong lành. Đây là những lý do chủ nhà chọn nơi đây là nơi xây dựng cho ngôi nhà đẹp 3 tầng phong cách Nhật của mình.
nhằm phù hợp với khí hậu thời tiết miền Bắc Việt Nam, các nhà thiết kế đã quyết định đưa ra ý tưởng với ngôi nhà phong cách Nhật Bản pha thiết kế ruộng bậc thang. Nhìn tổng quan, ngôi nhà đẹp 3 tầng mang vẻ đẹp đậm chất Nhật Bản. Sự tạo thành khối lệch giữa các tầng tạo nên sự so le hình ruộng bậc thang tạo thành sự độc đáo. Dưới ánh đèn, khi màn đêm xuống, ngôi nhà như một bức tranh lung linh, huyền ảo.
Các tầng được xây trượt về phía sau, tạo thành thành khoảng ban công vươn về trước theo hướng gió mát Đông Nam. Phần đua ra của tầng trên tạo thành mái hiên cho tầng dưới ở phía Tây Bắc, giúp giảm nhiệt độ cho cấu trúc bê tông cốt thép của tòa nhà.
Nhờ thiết kế độc đáo này, từng tầng của ngôi nhà đều có ban công và hệ cửa lớn có tác dụng đón gió và có tầm nhìn ra hồ.
khắp ngôi nhà ngập tràn các cây xanh và hoa lá. chủ nhà thiết kế hệ thống trồng cây hoa ngay trên chính ban công của từng tầng. Nhìn từ xa, ngôi nhà ví như bao bọc bởi cây và hoa.
Xem thêm: HẾT SỨC BẤT NGỜ VỚI NHÀ 3 TẦNG TỒI TÀN NHƯNG CHỨA ĐỰNG CẢ SÀI GÒN XƯA CŨ BÊN TRONG
Mái và hệ cửa vận dụng kỹ thuật làm gỗ truyền thống nhằm đảm tận dụng triệt để khả năng thông gió tự nhiên và giảm bớt sự tác động của ánh nắng mặt trời. Gia chủ có thể linh hoạt tạo thành ra các không gian đóng - mở liên thông tùy nhu cầu.
Tầng mái bằng gỗ được lắp ráp xen kẽ với ngói, có cửa sổ hút gió trên đỉnh. Cửa sổ này đóng vai trò là đường thông gió từ tầng 2, tầng 3 lên khu vực cao nhất của công trình.
Xem thêm một số hình ảnh về ngôi nhà đẹp 3 tầng kiểu Nhật Bản này:
Mặt bằng Tầng 1:
Mặt bằng tầng 2:
Mặt bằng tầng 3:









Bình Luận